MURAS | Oficina de Arquitectura

HOME

EL ESTUDIO

OBRAS

ARTE

SERVICIOS

CONTACTO

< VOLVER

TIGRE

Año de proyecto: 2016
Año de construcción: 2016
Superficie de terreno: 331 m2
Superficie construida: 215 m2

AUTOR
Arq.
Ariel Muras

COLABORADORES
Bruno Robotti

UBICACION

Barrio Tigre Joven
Tigre, Buenos Aires.

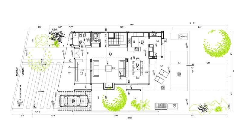
De nuevo nos encontramos por normas de código en el corto plazo con la misma tipología anterior, una casa recostada sobre una medianera y dejando libre la otra. En este caso, en un terreno de medidas mínimas, la solución estuvo centrada en maximizar ese retiro lateral agrandandolo al máximo para lograr que el espacio urbano se haga cargo de él dandole vida plena. Para eso se trabajó estirando la medida a una más acorde para la tarea y a su vez diseñando un cerramiento completamente vidriado hacia ese sector, que logre limitar el interior y el exterior con la mínima expresión incorporando los dos espacios y recuperando así el ancho total del terreno a nivel visual.

De esta manera, se complementa también la idea con un programa de Planta Alta muy particular, que incluye dos suites enfrentadas en desarrollo transversal que generan un vacio de doble altura en el centro que vuelve a recategorizar la idea del costado como generador del proyecto. Luz, vidrio, arquitectura y vacío se combinan para estirar al máximo un terreno limitado.

La imagen general se resuelve con el peso tectónico de los volúmenes superiores en contraposición con la transparencia de la Planta Baja que logra siempre ese efecto intenso de la ingravidez. El vano del frente se recubre de un parasol continuo en línea para reforzar esa volumetría.

Por último el diseño de las carpinterías corredizas en paños superpuestos intenta integrar sin límites interiores y exteriores en todas direcciones, para olvidar la limitación de lo mínimo y disfrutar la percepción de lo amplio.